Внутренняя свобода
Однокомнатные и двухкомнатные малометражные квартиры – один из наиболее востребованных видов жилья в крупных городах в силу своей доступности. Для того чтобы тесные на первый взгляд квартиры оказались достаточно просторными и удобными, дизайнеры применяют различные подходы: соединяют и разделяют комнаты, проектируют встроенную мебель, которая занимает минимум места и вмещает максимум вещей, используют зеркала для визуального увеличения пространства.

В моей подборке – несколько таких вариантов.
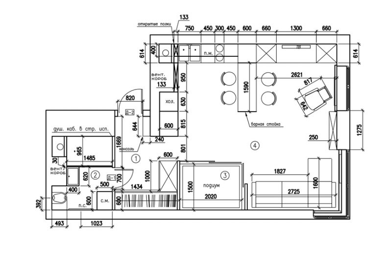
Как из «однушки» сделать «двушку»
Проектирование: Zi-design
Автор проекта: Мария Зародова
Площадь: 38 кв. м
Объект: однокомнатная квартира

Небольшую однокомнатную квартиру со свободной планировкой дизайнеры переформатировали в подобие двухкомнатной при помощи раздвижных перегородок, которыми они отделили от гостиной кровать на подиуме. В конструкции предусмотрены выдвижные ящики для хранения белья.

Маленький санузел не вмещал полноценную ванну, поэтому автор проекта предложила организовать душевую кабину строительным способом – сделанный из бетона поддон облицевать плиткой, имитирующей дерево, и изготовить на заказ стеклянные двери под размер кабины.

Кухонный гарнитур IKEA объединен с системой глубоких шкафов. На границе разместилась полуостровная столешница, играющая роль обеденного стола. Это решение удобно с планировочной точки зрения, но уровень поверхности на 15 см выше обычного стола.

Все отделочные материалы и мебельные фасады разнообразны по своей фактуре, но близки по общей светлой гамме. Чтобы подчеркнуть объем помещения, контрастными сделали лишь некоторые элементы – диван, стеллажи и светильники.

Геометрия стен
Дизайн: бюро «Уютная квартира»
Автор проекта: Маша Шришина
Площадь: 34 кв. м
Объект: однокомнатная квартира

В однокомнатной квартире необходимо было спланировать две изолированные комнаты и увеличить площадь ванной, чтобы там поместилась стиральная машина. Ванную комнату немного расширили за счет коридора.
Для устройства комнат дизайнер предложила сделать диагональные стены, чтобы вместить все дверные проемы и не допустить пересечения мокрых зон, запланированных застройщиком и зафиксированных в плане БТИ. Эта геометрия оказала влияние на весь дизайн квартиры – во всех комнатах представлены графические решения, изменяющие облик пространства.

Так, в нейтральной спальне появилось цветное панно в изголовье кровати, подобным образом оформили и кухню, совмещенную с гостиной. Квартира небольшая, но в ней получилось достаточно мест для хранения: в спальне – вместительный встраиваемый шкаф, в прихожей – гардеробная для сезонной одежды, при входе – небольшой комод для обуви.

Дизайн ванной комнаты основан на том же приеме асимметрии. В отделке предлагается два вида плитки – под камень и с имитацией мозаики. Также плитка использована как акцент на стене напротив входа.

Квартира для стилиста
Дизайн: Ирина Фефелова
Объект: однокомнатная квартира
Площадь: 54,3 кв. м.

Исходя из пожеланий заказчицы – владелицы салона красоты, дизайнер создала современный интерьер в стиле лофт. Особенностью планировочного решения является то, что изолированные комнаты объединены, а спальня расположена в нише, на месте просторной прихожей.

Дизайнеру удалось придать интерьеру больше света и ощущение пространства при помощи покраски кирпичных стен в белый цвет. Поскольку хозяйка квартиры не очень любит готовить и в основном обедает или ужинает в ресторанах или кафе, кухня заняла минимальное место в проекте.

В квартире появилась просторная гостиная с круглым столом и удобными креслами, в которой нашлось место для фальшкамина и диванной зоны. Все это располагает к атмосфере творческой свободы.

Классические элементы и грубая текстура кирпичных стен в сочетании с современной мебелью позволили создать лаконичный и стильный интерьер, не требующий больших вложений.

Интерьер для экстремала
Дизайн: Stanley Preston Interior
Автор проекта: Ольга Старикова
Объект: двухкомнатная квартира
Площадь: 65 кв. м

Основная задача – в маленькой двухкомнатной квартире создать интерьер, подходящий как для повседневной жизни, так и для вечеринок с друзьями.

Для реализации этого проекта решено было объединить одну из комнат с кухонной зоной, чтобы получилась открытая студийная планировка с интересной геометрией, заданной контуром внешних стен. За дверью скрывается изолированная спальная комната – о ее существовании можно догадаться только по видимой фурнитуре и узкой щели дверного проема.

«Тусовочной» атмосферы авторы проекта добились за счет использования ярких деталей, необычных форм и освещения, переходящего с потолка на внешнюю стену дома, прикрытую гипсокартонной конструкцией.

Ритм и движение в пространстве также строится на деталях – например, обеденный и одновременно барный стол композиционно завязан с желтой дверью, ведущей в ванную.


В моей подборке – несколько таких вариантов.
Как из «однушки» сделать «двушку»
Проектирование: Zi-design
Автор проекта: Мария Зародова
Площадь: 38 кв. м
Объект: однокомнатная квартира

Небольшую однокомнатную квартиру со свободной планировкой дизайнеры переформатировали в подобие двухкомнатной при помощи раздвижных перегородок, которыми они отделили от гостиной кровать на подиуме. В конструкции предусмотрены выдвижные ящики для хранения белья.

Маленький санузел не вмещал полноценную ванну, поэтому автор проекта предложила организовать душевую кабину строительным способом – сделанный из бетона поддон облицевать плиткой, имитирующей дерево, и изготовить на заказ стеклянные двери под размер кабины.

Кухонный гарнитур IKEA объединен с системой глубоких шкафов. На границе разместилась полуостровная столешница, играющая роль обеденного стола. Это решение удобно с планировочной точки зрения, но уровень поверхности на 15 см выше обычного стола.

Все отделочные материалы и мебельные фасады разнообразны по своей фактуре, но близки по общей светлой гамме. Чтобы подчеркнуть объем помещения, контрастными сделали лишь некоторые элементы – диван, стеллажи и светильники.

Геометрия стен
Дизайн: бюро «Уютная квартира»
Автор проекта: Маша Шришина
Площадь: 34 кв. м
Объект: однокомнатная квартира

В однокомнатной квартире необходимо было спланировать две изолированные комнаты и увеличить площадь ванной, чтобы там поместилась стиральная машина. Ванную комнату немного расширили за счет коридора.
Для устройства комнат дизайнер предложила сделать диагональные стены, чтобы вместить все дверные проемы и не допустить пересечения мокрых зон, запланированных застройщиком и зафиксированных в плане БТИ. Эта геометрия оказала влияние на весь дизайн квартиры – во всех комнатах представлены графические решения, изменяющие облик пространства.

Так, в нейтральной спальне появилось цветное панно в изголовье кровати, подобным образом оформили и кухню, совмещенную с гостиной. Квартира небольшая, но в ней получилось достаточно мест для хранения: в спальне – вместительный встраиваемый шкаф, в прихожей – гардеробная для сезонной одежды, при входе – небольшой комод для обуви.

Дизайн ванной комнаты основан на том же приеме асимметрии. В отделке предлагается два вида плитки – под камень и с имитацией мозаики. Также плитка использована как акцент на стене напротив входа.


Квартира для стилиста
Дизайн: Ирина Фефелова
Объект: однокомнатная квартира
Площадь: 54,3 кв. м.

Исходя из пожеланий заказчицы – владелицы салона красоты, дизайнер создала современный интерьер в стиле лофт. Особенностью планировочного решения является то, что изолированные комнаты объединены, а спальня расположена в нише, на месте просторной прихожей.

Дизайнеру удалось придать интерьеру больше света и ощущение пространства при помощи покраски кирпичных стен в белый цвет. Поскольку хозяйка квартиры не очень любит готовить и в основном обедает или ужинает в ресторанах или кафе, кухня заняла минимальное место в проекте.

В квартире появилась просторная гостиная с круглым столом и удобными креслами, в которой нашлось место для фальшкамина и диванной зоны. Все это располагает к атмосфере творческой свободы.

Классические элементы и грубая текстура кирпичных стен в сочетании с современной мебелью позволили создать лаконичный и стильный интерьер, не требующий больших вложений.

Интерьер для экстремала
Дизайн: Stanley Preston Interior
Автор проекта: Ольга Старикова
Объект: двухкомнатная квартира
Площадь: 65 кв. м

Основная задача – в маленькой двухкомнатной квартире создать интерьер, подходящий как для повседневной жизни, так и для вечеринок с друзьями.

Для реализации этого проекта решено было объединить одну из комнат с кухонной зоной, чтобы получилась открытая студийная планировка с интересной геометрией, заданной контуром внешних стен. За дверью скрывается изолированная спальная комната – о ее существовании можно догадаться только по видимой фурнитуре и узкой щели дверного проема.

«Тусовочной» атмосферы авторы проекта добились за счет использования ярких деталей, необычных форм и освещения, переходящего с потолка на внешнюю стену дома, прикрытую гипсокартонной конструкцией.

Ритм и движение в пространстве также строится на деталях – например, обеденный и одновременно барный стол композиционно завязан с желтой дверью, ведущей в ванную.

Только зарегистрированные и авторизованные пользователи могут оставлять комментарии.
0
Как гостиница — замечательно, но как здесь ЖИТЬ?
- ↓

