Обустраиваем малогабаритную двушку
Большинство типовых двухкомнатных квартир в домах старых серий отличаются неудобными планировками, маленькими кухнями и санузлами, низкими потолками. Однако на вторичном рынке жилья они по-прежнему популярны из-за небольшой площади и, как следствие, более доступной цены. При этом требования хозяев к планировке и интерьеру определяются индивидуальными запросами и порой складываются в длинный перечень.

С таким списком пожеланий и обратились владельцы типовой «двушки» площадью 46 кв. м в студию архитектурно-дизайнерского проектирования DVEKATI. Они попросили сделать изолированную планировку, продумать шкафы и вместительный кухонный гарнитур, не забыть про барную стойку и в дополнение разместить полноценную ванну и стиральную машину в санузле. В будущем гостиная должна трансформироваться в детскую и где-нибудь обязательно надо найти место для рабочего уголка.
Партнер студии архитектурно-дизайнерского проектирования DVEKATI Екатерина Мамаева:
– Обязательная изоляция всех помещений в такой небольшой квартире усложнила поставленную перед нами задачу. Обычно в малогабаритках мы стараемся сделать пространство максимально студийным, воздушным, без ущерба функциональности. В данном случае выручило наличие большой лоджии, объединяющей две жилые комнаты. После согласования с техническим экспертом ее было решено утеплить и присоединить к комнатам, но при этом разделить, не забывая об основной задаче – экономии и полезном использовании каждого сантиметра. Таким образом, присоединенная площадь используется максимально функционально – в спальне здесь размещен рабочий уголок со стеллажом в проеме, в гостиной – винный шкаф и барная стойка.
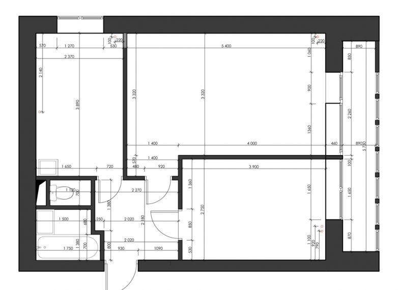
В результате присоединения лоджии площадь квартиры увеличилась до 52 кв. м. Появился вытянутый коридор, без которого не получалось сделать комнаты изолированными. Ванная «захватила» территорию прихожей и кухни, а кухня и гардероб заняли часть жилой площади. По законодательству согласовать такую перепланировку практически невозможно, даже если она не причиняет неудобства соседям.


План до и после перепланировки
Дерево в интерьере
Стилистическое решение формировалось вслед за планировочным. Так, продолговатую форму коридора решили уравновесить поперечными деревянными рейками, закрепив их на выкрашенном в черный цвет потолке. Рейки симметрично спускаются с противоположных стен, образуя книжный стеллаж с одной стороны и заканчиваясь тумбой с другой. Тумба изготовлена на заказ по эскизам студии. С коридором перекликаются рейки на потолке лоджий. Фактура дерева возникает и в гостиной в отделке проема на лоджию: дизайнеры пошли на небольшую хитрость и использовали в качестве отделочного материала стен напольный ламинат, что позволило значительно сэкономить.

Граффити
Геометрическое граффити на стенах спальни было предложено самими хозяевами. Цветные грани разбивают однотонную поверхность стен и придают ощущение глубины и объема интерьеру.

Реализовать такой прием просто – надо заколеровать несколько баночек краски, нанести на стены карандашом рисунок и запастись малярным скотчем. Менее явно узор повторяется и на кухне в других цветовых сочетаниях.

Тему также поддерживает текстиль диванных подушек в гостиной.
Ванная комната
Похожую ванную в строгих черных тонах хозяева увидели в берлинском отеле. Ради экономии площади и установки стиральной машины с размещенными над ней полками в маленьком санузле для ванны сделали нишу.

С стороны коридора в этих же габаритах поместился встроенный шкаф.

Кухня
Кухонный гарнитур спроектирован дизайнерами из разных коллекций.

Смелое сочетание цветов и фактур кухонных фасадов дополнили столешницей и фартуком из черного полированного гранита – такое решение было с энтузиазмом принято хозяйкой.
Комментарии
Иван Сельвинский, ведущий архитектор, партнер, архитектурная группа «А+А»:
– В этом проекте все хорошо – и планировка, и оформление пространства. Планировка функциональная: площадь используется на все 100%. Небольшими и меткими штрихами авторам проекта удалось вместить все самое необходимое, и даже больше: полноразмерную ванну, гардеробную при спальне, винный бар. В оформлении девушки придерживаются актуального европейского стиля, используя чистые линии, геометрические паттерны, естественную текстуру древесины. Прекрасный пример того, когда в условиях ограниченного бюджета получается качественная и стильная работа.
Из несущественных минусов (многие из которых абсолютно субъективны) я бы назвал отсутствие створок у стеллажей (в особенности в туалете), два ряда навесных шкафов на кухне, которые выглядят слишком пестро и дробно. Возможно, текстиль мог бы смягчить интерьер в целом, сделав его более жилым. Но все замечания в данном случае лишь повод к размышлению, так как проект в целом очень удачный.
Арсений Леонович, главный архитектор, основатель архбюро PANACOM:
– Дизайн этой квартиры весьма самобытный и интересный. Прекрасным образом произведено зонирование и освещение. Потолочное LED-освещение зрительно увеличивают высоту потолка, встроенные светильники взамен стандартных свисающих люстр не отвлекают от дизайна и атмосферы, а светло-мятные и пастельные тона стен визуально расширяют пространство. За счет профессиональных «фишек» квартира в 52 кв. м кажется намного больше, чем есть на самом деле.
Переход геометрического рисунка с одной стены на другую создает ощущение цикличности орнамента и законченности мысли. Весьма практично и незамысловато сделана лоджия под рабочую зону.
На мой взгляд, в дизайне присутствует очень много фактур и цветов, вносящих в данный стерильный интерьер творческую и молодежную небрежность.
Ванная комната выполнена в слишком камерных, темных тонах, не совсем вторя общей стилистике. Хотя вполне возможно, что заказчик хотел принимать водные процедуры именно в подобной «капсульной» обстановке.

С таким списком пожеланий и обратились владельцы типовой «двушки» площадью 46 кв. м в студию архитектурно-дизайнерского проектирования DVEKATI. Они попросили сделать изолированную планировку, продумать шкафы и вместительный кухонный гарнитур, не забыть про барную стойку и в дополнение разместить полноценную ванну и стиральную машину в санузле. В будущем гостиная должна трансформироваться в детскую и где-нибудь обязательно надо найти место для рабочего уголка.
Партнер студии архитектурно-дизайнерского проектирования DVEKATI Екатерина Мамаева:
– Обязательная изоляция всех помещений в такой небольшой квартире усложнила поставленную перед нами задачу. Обычно в малогабаритках мы стараемся сделать пространство максимально студийным, воздушным, без ущерба функциональности. В данном случае выручило наличие большой лоджии, объединяющей две жилые комнаты. После согласования с техническим экспертом ее было решено утеплить и присоединить к комнатам, но при этом разделить, не забывая об основной задаче – экономии и полезном использовании каждого сантиметра. Таким образом, присоединенная площадь используется максимально функционально – в спальне здесь размещен рабочий уголок со стеллажом в проеме, в гостиной – винный шкаф и барная стойка.
В результате присоединения лоджии площадь квартиры увеличилась до 52 кв. м. Появился вытянутый коридор, без которого не получалось сделать комнаты изолированными. Ванная «захватила» территорию прихожей и кухни, а кухня и гардероб заняли часть жилой площади. По законодательству согласовать такую перепланировку практически невозможно, даже если она не причиняет неудобства соседям.


План до и после перепланировки
Дерево в интерьере
Стилистическое решение формировалось вслед за планировочным. Так, продолговатую форму коридора решили уравновесить поперечными деревянными рейками, закрепив их на выкрашенном в черный цвет потолке. Рейки симметрично спускаются с противоположных стен, образуя книжный стеллаж с одной стороны и заканчиваясь тумбой с другой. Тумба изготовлена на заказ по эскизам студии. С коридором перекликаются рейки на потолке лоджий. Фактура дерева возникает и в гостиной в отделке проема на лоджию: дизайнеры пошли на небольшую хитрость и использовали в качестве отделочного материала стен напольный ламинат, что позволило значительно сэкономить.

Граффити
Геометрическое граффити на стенах спальни было предложено самими хозяевами. Цветные грани разбивают однотонную поверхность стен и придают ощущение глубины и объема интерьеру.

Реализовать такой прием просто – надо заколеровать несколько баночек краски, нанести на стены карандашом рисунок и запастись малярным скотчем. Менее явно узор повторяется и на кухне в других цветовых сочетаниях.

Тему также поддерживает текстиль диванных подушек в гостиной.
Ванная комната
Похожую ванную в строгих черных тонах хозяева увидели в берлинском отеле. Ради экономии площади и установки стиральной машины с размещенными над ней полками в маленьком санузле для ванны сделали нишу.

С стороны коридора в этих же габаритах поместился встроенный шкаф.

Кухня
Кухонный гарнитур спроектирован дизайнерами из разных коллекций.

Смелое сочетание цветов и фактур кухонных фасадов дополнили столешницей и фартуком из черного полированного гранита – такое решение было с энтузиазмом принято хозяйкой.
Комментарии
Иван Сельвинский, ведущий архитектор, партнер, архитектурная группа «А+А»:
– В этом проекте все хорошо – и планировка, и оформление пространства. Планировка функциональная: площадь используется на все 100%. Небольшими и меткими штрихами авторам проекта удалось вместить все самое необходимое, и даже больше: полноразмерную ванну, гардеробную при спальне, винный бар. В оформлении девушки придерживаются актуального европейского стиля, используя чистые линии, геометрические паттерны, естественную текстуру древесины. Прекрасный пример того, когда в условиях ограниченного бюджета получается качественная и стильная работа.
Из несущественных минусов (многие из которых абсолютно субъективны) я бы назвал отсутствие створок у стеллажей (в особенности в туалете), два ряда навесных шкафов на кухне, которые выглядят слишком пестро и дробно. Возможно, текстиль мог бы смягчить интерьер в целом, сделав его более жилым. Но все замечания в данном случае лишь повод к размышлению, так как проект в целом очень удачный.
Арсений Леонович, главный архитектор, основатель архбюро PANACOM:
– Дизайн этой квартиры весьма самобытный и интересный. Прекрасным образом произведено зонирование и освещение. Потолочное LED-освещение зрительно увеличивают высоту потолка, встроенные светильники взамен стандартных свисающих люстр не отвлекают от дизайна и атмосферы, а светло-мятные и пастельные тона стен визуально расширяют пространство. За счет профессиональных «фишек» квартира в 52 кв. м кажется намного больше, чем есть на самом деле.
Переход геометрического рисунка с одной стены на другую создает ощущение цикличности орнамента и законченности мысли. Весьма практично и незамысловато сделана лоджия под рабочую зону.
На мой взгляд, в дизайне присутствует очень много фактур и цветов, вносящих в данный стерильный интерьер творческую и молодежную небрежность.
Ванная комната выполнена в слишком камерных, темных тонах, не совсем вторя общей стилистике. Хотя вполне возможно, что заказчик хотел принимать водные процедуры именно в подобной «капсульной» обстановке.
Только зарегистрированные и авторизованные пользователи могут оставлять комментарии.
0
Свежо и симпатично!
- ↓

