Идеи планировки ванной комнаты
В типовых многоквартирных домах и даже монолитных новостройках на ванные комнаты в среднем выделяется 5-7 кв. м. Я сделала подборку из нескольких планировочных решений для небольших санузлов и подсчитала затраты на сантехнику.
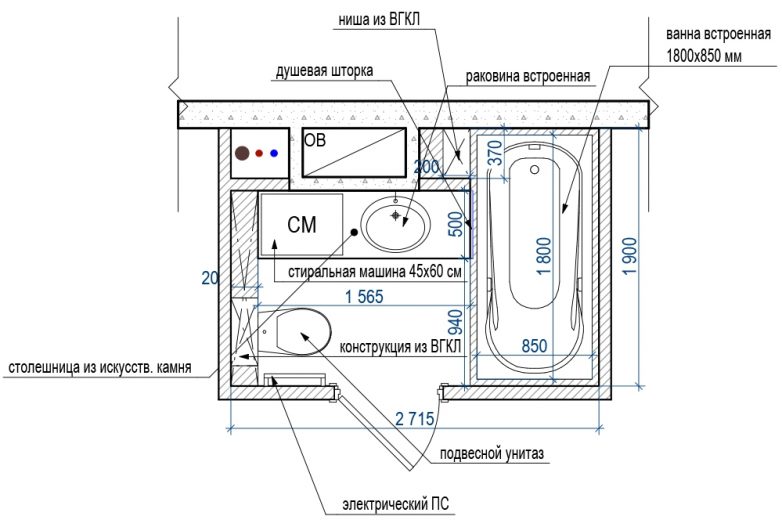
К современным ванным комнатам предъявляется много требований. Все хотят большую ванну, много полочек и шкафов, подвесной унитаз с кнопкой на стене и обязательно полноразмерную стиральную машину. Разместить все это на 5 кв. м задача не из легких. Надо учитывать не только простые правила эргономики, но и условия, которые диктуют расположение сантехники относительно инженерных коммуникаций.
Вариант № 1
Исходная планировка этой ванной комнаты похожа на совмещенные санузлы типовых домов, если бы не отсек со стиральной машиной. Помещение довольно большой площади (7 кв. м) имеет вытянутую форму и условно разделено на зону принятия водных процедур, туалет и постирочную. Прямоугольная ванна длиной 170 см удачно вписалась в нишу, образованную коробом, скрывающим стояки, и боковой стенкой.

Широкую (1,45 м) столешницу под врезную раковину предлагается сделать из гипсоволокнистых влагостойких листов на базе металлокаркаса. Если подобная технология не внушает доверия, то П-образную конструкцию можно отлить из бетона, усиленного арматурой. Тогда она выдержит любого взрослого человека. Отмечу, что выдвижной ящик под поверхностью придется заказывать. Готовых моделей такого типа в продаже нет.






Однотонная бежевая отделка, «разбивается» мозаикой, которой отделаны нижний пояс ванной и короб скрытой системы инсталляции для подвесного унитаза. Во время реализации подобного решения важно точно соблюсти геометрию прямых углов и просчитать все размеры, чтобы они были кратны мелкому шагу мозаики. В противном случае недостатки сразу станут бросаться в глаза.






Комплектация:
Душевая система Grohe Rainshower Icon System 190 — 43 000 руб. Подвесной унитаз Jacob Delafon Presquile арт. E4440 — 24 000 руб. Гигиенический душ с лейкой Cristina Tricolore AC67651 — 14 300 руб. Смеситель для раковины Grohe Eurostyle Cosmopolitan арт. 33552002 — 6000 руб. Чугунная ванна Jacob Delafon Diapason (170х75 см), арт. E2926 — 33 000 руб. Встраиваемая раковина Laufen Pro 1395.1.000.104.1 — 5500 руб.
Итого: 125 тыс. руб.
Вариант № 2




Отдельно стоящая ванна выступает в роли арт-объекта как по внешнему виду, так и по стоимости. В данном случае чашу поставили по диагонали, слегка исправив пропорции узкого помещения. Дизайнерам повезло с нишами. С одной стороны, они разместили в них полки и стиральную машину, с другой — задали определенный ритм плоскости стены. И снова мозаика и крупноформатная плитка. Будто все сговорились.





Комплектация:
Раковина Villeroy&Boch Aveo — 20 000 руб. Ванна Jacuzzi Infinito — 280 000 руб. Унитаз Villeroy&Boch Aveo — 30 000 руб. Смеситель для ванны Jessi Ovale 21 525 — 45 500 руб. Смеситель для раковины Guilini 6596/U — 14 000 руб.
Итого: 389 тыс. руб.
Вариант № 3
Традиционная прямоугольная конфигурация ванной комнаты площадью 5 кв. м. Здесь следует отметить удачное планировочное решение. Напротив входа расположена центральная композиция из столешницы, накладной раковины и зеркала. Чтобы ванная комната не была похожа на одноцветный куб, стены получили контрастную горизонтальную облицовку плиткой и мозаикой, которая визуально увеличивает ширину помещения. Серые плоскости делают помещение более светлым.





Вызывает тревогу консольная конструкция столешницы, сделанной из искусственного камня. Она должна выдерживать приличную нагрузку. Установка подвесного унитаза, с одной стороны, оправдана с точки зрения актуальности дизайна и соблюдения чистоты, но короб, в котором скрывается бачок и рама системы инсталляции, съедает пространство. Дизайнеры попробовали решить этот вопрос с помощью ниши с декоративной подсветкой, но пользоваться полотенцесушителем будет затруднительно. Кроме того, не совсем понятно, как организовать слив из ванны, учитывая то, что она находится на приличном расстоянии от стояка, а дальнюю капитальную стену запрещено штробить.






Комплектация:
Полотенцесушитель «Сунержа» High-Tech model «G» 320x650 мм — 6300 руб. Подвесной унитаз Duravit Starck 3 — 14 000 руб. Душевая система Raindance S Showerpipe EcoSmart 180 мм — 60 000 руб. Накладная раковина Hatria Happy Hour 17:00 (арт. Y0QQ01) — 15 000 руб. Акриловая гидромассажная ванна BAC Ямайка (180х80 см) — 24 000 руб. Высокий смеситель для раковины Hansgrohe Metris S 31022000 — 13 000 руб.
Итого: 132 тыс. руб.
Вариант № 4
Эта ванная комната, на первый взгляд, мало отличается от остальных. При внимательном рассмотрении становится понятно, что здесь удачно решили проблему больших коробов, скрывающих вентиляцию и коммуникации. Простенок, за которым они прячутся, продлили до ванной и сделали сбоку удобные ниши для шампуней и прочих принадлежностей.

С фронтальной стороны этого простенка предлагается сделать длинную столешницу, под которой спрячется стиральная машина. В итоге осталось место только для унитаза и небольшого свободного пятачка размером метр на метр. Расстояния между «белым троном» и стиральной машиной достаточно для загрузки и выгрузки белья, но чтобы установить или заменить бытовую технику, придется на время демонтировать унитаз.






Для семей с маленькими детьми дизайнеры предусмотрели смеситель по центру ванны. Нетрудно себе представить, насколько сложно тянуться каждый раз к смесителю в нише, чтобы управлять водой во время купания ребенка. Теперь же можно закрепить дополнительную душевую лейку для удобства.






Комплектация:
Унитаз подвесной VitrA Form 500 4305B003-6067 — 8000 руб. Чугунная ванна Roca Malibu 2333G0000 (170х70) — 25 300 руб. Раковина Roca Foro 327872000 (40 см) — 4500 руб. Смеситель для раковины Roca Victoria NEW 5A3025C00 — 2500 руб. Душевая стойка Hansgrohe Croma 100 27154000 — 30 000 руб. Смеситель Hansgrohe Focus E2 31940000 для ванны с душем — 7200 руб.
Итого: 77,5 тыс. руб.
Вариант № 5

Одна из немногих дозволенных процедур в типовых панельных домах — объединение ванной комнаты и туалета. Эта процедура не приносит особых дивидендов, кроме небольшого увеличения площади помещения. А простор означает более высокий статус и разнообразие декоративных решений.





Дизайнеры предлагают использовать два популярных материала — крупноформатную плитку «под камень» и мелкую мозаику. Атмосферу шика маленькой ванной комнате площадью всего 3 кв. м придает дорогая сантехника, барочная рама зеркала и светодиодная подсветка потолка и шкафчика под раковиной. Соответственно и стоимость переделки возросла.





Комплектация:
Приставной унитаз Laufen Alessi one — 45 000 руб. Накладная раковина Laufen Alessi one — 43 000 руб. Чугунная ванна Roca Continental 140х70 см — 20 000 руб. Смеситель для раковины Hansgroe talis S2 — 11 500 руб. Смеситель для ванны Focus S 317 58000 — 21 000 руб.
Итого: 140,5 тыс. руб.
Вариант № 6. Душевая
В узких вытянутых помещениях нет причин устанавливать ванну. Да и практика показывает, что душевая кабина намного удобнее в повседневной жизни. При желании кабину можно построить прямо в нише, и для этого требуется грамотно сделать гидроизоляцию стен и поддона.

Особо следует уделить внимание организации отвода сточных вод. В некоторых случаях из-за высокого расположения отвода и канализационного стояка уровень пола в душевой кабине может подняться на 30 см. Это неудобно и требует строительства ступеньки.




При кажущейся компактности душевая комната занимает 5 кв. м. Достаточно места для большой душевой кабины, стиральной машины и встроенного шкафа, в котором будут храниться полотенца, шампуни и другие принадлежности. Контрастное цветовое решение выразилось в сочетании темно-коричневой плитки, имитирующей камень, и белых декоров с черными розами. Графичный флористический сюжет смягчает жесткую стилистику оформления душевой комнаты.





Комплектация:
Унитаз подвесной Roca Gap арт. 346477000 — 9500 руб. Врезная раковина Villeroy&Boch Loop&Friends арт. 614151 — 13 000 руб. Электрический полотенцесушитель Artinox Florina — 40 000 руб. Стеклянные дверцы душевой сделаны на заказ — 20 000 руб. Душевая стойка Hansgrohe Croma 220 Showerpipe 27185000 — 34 000 руб. Смеситель для раковины Hansgrohe Focus E 31700000 — 5700 руб.
Итого: 122,2 тыс. руб.

К современным ванным комнатам предъявляется много требований. Все хотят большую ванну, много полочек и шкафов, подвесной унитаз с кнопкой на стене и обязательно полноразмерную стиральную машину. Разместить все это на 5 кв. м задача не из легких. Надо учитывать не только простые правила эргономики, но и условия, которые диктуют расположение сантехники относительно инженерных коммуникаций.
Вариант № 1
Исходная планировка этой ванной комнаты похожа на совмещенные санузлы типовых домов, если бы не отсек со стиральной машиной. Помещение довольно большой площади (7 кв. м) имеет вытянутую форму и условно разделено на зону принятия водных процедур, туалет и постирочную. Прямоугольная ванна длиной 170 см удачно вписалась в нишу, образованную коробом, скрывающим стояки, и боковой стенкой.

Широкую (1,45 м) столешницу под врезную раковину предлагается сделать из гипсоволокнистых влагостойких листов на базе металлокаркаса. Если подобная технология не внушает доверия, то П-образную конструкцию можно отлить из бетона, усиленного арматурой. Тогда она выдержит любого взрослого человека. Отмечу, что выдвижной ящик под поверхностью придется заказывать. Готовых моделей такого типа в продаже нет.






Однотонная бежевая отделка, «разбивается» мозаикой, которой отделаны нижний пояс ванной и короб скрытой системы инсталляции для подвесного унитаза. Во время реализации подобного решения важно точно соблюсти геометрию прямых углов и просчитать все размеры, чтобы они были кратны мелкому шагу мозаики. В противном случае недостатки сразу станут бросаться в глаза.






Комплектация:
Душевая система Grohe Rainshower Icon System 190 — 43 000 руб. Подвесной унитаз Jacob Delafon Presquile арт. E4440 — 24 000 руб. Гигиенический душ с лейкой Cristina Tricolore AC67651 — 14 300 руб. Смеситель для раковины Grohe Eurostyle Cosmopolitan арт. 33552002 — 6000 руб. Чугунная ванна Jacob Delafon Diapason (170х75 см), арт. E2926 — 33 000 руб. Встраиваемая раковина Laufen Pro 1395.1.000.104.1 — 5500 руб.
Итого: 125 тыс. руб.
Вариант № 2





Отдельно стоящая ванна выступает в роли арт-объекта как по внешнему виду, так и по стоимости. В данном случае чашу поставили по диагонали, слегка исправив пропорции узкого помещения. Дизайнерам повезло с нишами. С одной стороны, они разместили в них полки и стиральную машину, с другой — задали определенный ритм плоскости стены. И снова мозаика и крупноформатная плитка. Будто все сговорились.





Комплектация:
Раковина Villeroy&Boch Aveo — 20 000 руб. Ванна Jacuzzi Infinito — 280 000 руб. Унитаз Villeroy&Boch Aveo — 30 000 руб. Смеситель для ванны Jessi Ovale 21 525 — 45 500 руб. Смеситель для раковины Guilini 6596/U — 14 000 руб.
Итого: 389 тыс. руб.
Вариант № 3
Традиционная прямоугольная конфигурация ванной комнаты площадью 5 кв. м. Здесь следует отметить удачное планировочное решение. Напротив входа расположена центральная композиция из столешницы, накладной раковины и зеркала. Чтобы ванная комната не была похожа на одноцветный куб, стены получили контрастную горизонтальную облицовку плиткой и мозаикой, которая визуально увеличивает ширину помещения. Серые плоскости делают помещение более светлым.





Вызывает тревогу консольная конструкция столешницы, сделанной из искусственного камня. Она должна выдерживать приличную нагрузку. Установка подвесного унитаза, с одной стороны, оправдана с точки зрения актуальности дизайна и соблюдения чистоты, но короб, в котором скрывается бачок и рама системы инсталляции, съедает пространство. Дизайнеры попробовали решить этот вопрос с помощью ниши с декоративной подсветкой, но пользоваться полотенцесушителем будет затруднительно. Кроме того, не совсем понятно, как организовать слив из ванны, учитывая то, что она находится на приличном расстоянии от стояка, а дальнюю капитальную стену запрещено штробить.






Комплектация:
Полотенцесушитель «Сунержа» High-Tech model «G» 320x650 мм — 6300 руб. Подвесной унитаз Duravit Starck 3 — 14 000 руб. Душевая система Raindance S Showerpipe EcoSmart 180 мм — 60 000 руб. Накладная раковина Hatria Happy Hour 17:00 (арт. Y0QQ01) — 15 000 руб. Акриловая гидромассажная ванна BAC Ямайка (180х80 см) — 24 000 руб. Высокий смеситель для раковины Hansgrohe Metris S 31022000 — 13 000 руб.
Итого: 132 тыс. руб.
Вариант № 4
Эта ванная комната, на первый взгляд, мало отличается от остальных. При внимательном рассмотрении становится понятно, что здесь удачно решили проблему больших коробов, скрывающих вентиляцию и коммуникации. Простенок, за которым они прячутся, продлили до ванной и сделали сбоку удобные ниши для шампуней и прочих принадлежностей.

С фронтальной стороны этого простенка предлагается сделать длинную столешницу, под которой спрячется стиральная машина. В итоге осталось место только для унитаза и небольшого свободного пятачка размером метр на метр. Расстояния между «белым троном» и стиральной машиной достаточно для загрузки и выгрузки белья, но чтобы установить или заменить бытовую технику, придется на время демонтировать унитаз.






Для семей с маленькими детьми дизайнеры предусмотрели смеситель по центру ванны. Нетрудно себе представить, насколько сложно тянуться каждый раз к смесителю в нише, чтобы управлять водой во время купания ребенка. Теперь же можно закрепить дополнительную душевую лейку для удобства.






Комплектация:
Унитаз подвесной VitrA Form 500 4305B003-6067 — 8000 руб. Чугунная ванна Roca Malibu 2333G0000 (170х70) — 25 300 руб. Раковина Roca Foro 327872000 (40 см) — 4500 руб. Смеситель для раковины Roca Victoria NEW 5A3025C00 — 2500 руб. Душевая стойка Hansgrohe Croma 100 27154000 — 30 000 руб. Смеситель Hansgrohe Focus E2 31940000 для ванны с душем — 7200 руб.
Итого: 77,5 тыс. руб.
Вариант № 5

Одна из немногих дозволенных процедур в типовых панельных домах — объединение ванной комнаты и туалета. Эта процедура не приносит особых дивидендов, кроме небольшого увеличения площади помещения. А простор означает более высокий статус и разнообразие декоративных решений.





Дизайнеры предлагают использовать два популярных материала — крупноформатную плитку «под камень» и мелкую мозаику. Атмосферу шика маленькой ванной комнате площадью всего 3 кв. м придает дорогая сантехника, барочная рама зеркала и светодиодная подсветка потолка и шкафчика под раковиной. Соответственно и стоимость переделки возросла.





Комплектация:
Приставной унитаз Laufen Alessi one — 45 000 руб. Накладная раковина Laufen Alessi one — 43 000 руб. Чугунная ванна Roca Continental 140х70 см — 20 000 руб. Смеситель для раковины Hansgroe talis S2 — 11 500 руб. Смеситель для ванны Focus S 317 58000 — 21 000 руб.
Итого: 140,5 тыс. руб.
Вариант № 6. Душевая
В узких вытянутых помещениях нет причин устанавливать ванну. Да и практика показывает, что душевая кабина намного удобнее в повседневной жизни. При желании кабину можно построить прямо в нише, и для этого требуется грамотно сделать гидроизоляцию стен и поддона.

Особо следует уделить внимание организации отвода сточных вод. В некоторых случаях из-за высокого расположения отвода и канализационного стояка уровень пола в душевой кабине может подняться на 30 см. Это неудобно и требует строительства ступеньки.




При кажущейся компактности душевая комната занимает 5 кв. м. Достаточно места для большой душевой кабины, стиральной машины и встроенного шкафа, в котором будут храниться полотенца, шампуни и другие принадлежности. Контрастное цветовое решение выразилось в сочетании темно-коричневой плитки, имитирующей камень, и белых декоров с черными розами. Графичный флористический сюжет смягчает жесткую стилистику оформления душевой комнаты.





Комплектация:
Унитаз подвесной Roca Gap арт. 346477000 — 9500 руб. Врезная раковина Villeroy&Boch Loop&Friends арт. 614151 — 13 000 руб. Электрический полотенцесушитель Artinox Florina — 40 000 руб. Стеклянные дверцы душевой сделаны на заказ — 20 000 руб. Душевая стойка Hansgrohe Croma 220 Showerpipe 27185000 — 34 000 руб. Смеситель для раковины Hansgrohe Focus E 31700000 — 5700 руб.
Итого: 122,2 тыс. руб.
Только зарегистрированные и авторизованные пользователи могут оставлять комментарии.
0
Реншения планировок интересные. К сожалению, для среднестатистического россиянина — очень дорого. Хотелось бы посмотреть на более бюджетные варианты аналогичных планировок.
- ↓
+2
хорошо и главное по средствам, особенно пенсионерам
- ↓
0
Для одиноко проживающего человека смежный санузел подойдёт, а для семьи — уже не то. С утра бежим один в туалет, другой в это время умывается, третий тоже в это время в туалет просится. )))
- ↓

