Идеи по перепланировке однокомнатной квартиры
Как сделать комфортным своё жильё? Варианты перепланировки. Многие из владельцев современного жилья ощущают острую нехватку жилых метров.
Зачастую после расстановки мебели и техники свободного пространства остается очень мало. Отличным решением в такой ситуации станет перепланировка, позволяющая однокомнатную квартиру преобразить до неузнаваемости. Итак, как сделать так, чтобы каждый член семьи получил комфортные условия для проживания в однушке?
Перепланировка квартиры в этом случае предполагает соединение гостиной с кухней, таким образом можно получить дополнительное свободное пространство. Для зонирование пространства можно установить стеклянную перегородку.

Идея 2. И диван и… кровать
При желании иметь одновременно кровать и диван в однокомнатной квартире-студии следует расположить их друг напротив друга. Сегодня существуют современные кровати, монтирующиеся в стену.

Идея 3. Проходная кухня или кухня-ниша
В квартире-студии либо однокомнатной квартире можно обустроить проходной вариант кухни в коридоре, либо на ее месте, но сместив немного в сторону от входа. Таким образом, больше места освободится для мебели. Обычно такое дизайнерское решение подразумевает мини-кухню с гарнитуром не больше 1,8 м.

Идея 4. Перегородки из стекла
Чтобы зонировать «однушку», стоит использовать стеклянные перегородки, которые пропускают световой поток и смотрятся практически незаметно. Они не утяжеляют и не загромождают пространство. Это очень важно. Такая ошибка в маленькой квартире недопустима.

Идея 5. Кровать в стене
Идея 6. Раздвижная перегородка

Идея 7. Открытая детская для ребенка в студии вместе с родителями



Идея 8. Задействовать площадь прихожей
Идея 9. Использовать встроенные системы для хранения в 1-комнатной квартире
Встроенные системы для хранения вещей решают вопрос размещения вещей и при этом не загромождают пространство.



Идея 10. Сделать двушку из однокомнатной квартиры
Чтобы результат превзошел ожидания, следует придерживаться некоторых приемов:
пространство разделите стеклянными блоками – так получите две функциональные и естественно освещенные зоны. Прочный материал идеален для установки перегородок в квартире; перегородка из гипсокартона сделает одну зону глухой, комната лишится естественного освещения. Такая перегородка сгодится для спальни, где искусственный свет будет смотреться даже лучше. Для этого стоит использовать бра, светильники и торшеры;
зонирование мебелью – это декоративный вариант перепланировки с отсутствием тепло- и звукоизоляции.
Если высота потолков в квартире больше 2,5 метров, можно соорудить «второй этаж», например, для детской. Оптимальным вариантом для лестницы будут ступени из тумбочек, где можно разместить игрушки, книги, детские вещи.
В однокомнатной квартире хорошо выглядит зонирование разноцветными обоями и текстилем.

Идея 11. Сделать из однушки трешку
При наличии фантазии однокомнатную квартиру реально переоборудовать в трехкомнатное пространство. Однако такой ход выполним для помещений, площадью от 40 кв.м. Для функциональности перепланировки обычно необходимо сносить стену кухни. Так помещение будет квадратным, что расширит возможности для работы дизайнера. Идеальным будет решение об угловом расположении комнат.
В однокомнатной «трешке» будут спальня, детская и гостиная. В центральной зоне разместится гостиная, соединяющая все комнаты в единое пространство. Чтобы оно получилось воздушным и легким, двери из проекта стоит исключить. Стеновые перегородки поднимать рекомендуется не выше, чем на 1,4 метра. На кухне – можно использовать стол-трансформер, а в ванной – компактную душевую кабинку.

Идея 12. Делаем студию
Квартиры-студии сегодня становятся весьма актуальными. Это современный вид жилья, где перегородками выступают ширмы, полочки и стойки. Если придумать невысокую гипсокартонную стену, она сделает помещение уютнее.
Зону для приготовления пищи и гостиную можно разделить аркой. В такой перепланировке обязательно используют разное напольное покрытие: в гостиной – ламинат, в кухне – плитку. Гостевую зону лучше расположить около окна. Сюда стоит разместить диван, шкаф, кресла, столик и телевизор. На кухне следует установить барную стойку.

Идея 12. Cпальня за шторой подходит для пары без детейэкономная реализация.



Идея 13. Cпать на диване, кухня отдельно
Сегодня такой планировки стараются избегать, спать нужно на кровати!

Идея 14. Если высокие потолки — задействуй пространство!

Идея 14. Кровать на подиуме — хранение внизу
Идея 15. Столешница и стол вместе
Идея 16. Кровать в нише
Идея 17. Зонирование стеллажом
Идея 18. Зеркальный шкаф во всю стену добавляет объема
Идея 19. Хранение вдоль всей стены до потолка
Идея 20. Стенка для хранения + рабочее место
Еще несколько идей перепланировок — реализация с фото

















































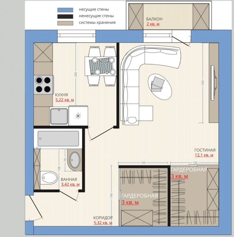
Примеры однокомнатных квартир с перепланировкой — планА как вы решили проблему нехватки свободной площади в однокомнатном жилье?


























Зачастую после расстановки мебели и техники свободного пространства остается очень мало. Отличным решением в такой ситуации станет перепланировка, позволяющая однокомнатную квартиру преобразить до неузнаваемости. Итак, как сделать так, чтобы каждый член семьи получил комфортные условия для проживания в однушке?
Популярные варианты перепланировки однушек
Идея 1. Кухня вместе с гостинойПерепланировка квартиры в этом случае предполагает соединение гостиной с кухней, таким образом можно получить дополнительное свободное пространство. Для зонирование пространства можно установить стеклянную перегородку.

Идея 2. И диван и… кровать
При желании иметь одновременно кровать и диван в однокомнатной квартире-студии следует расположить их друг напротив друга. Сегодня существуют современные кровати, монтирующиеся в стену.

Идея 3. Проходная кухня или кухня-ниша
В квартире-студии либо однокомнатной квартире можно обустроить проходной вариант кухни в коридоре, либо на ее месте, но сместив немного в сторону от входа. Таким образом, больше места освободится для мебели. Обычно такое дизайнерское решение подразумевает мини-кухню с гарнитуром не больше 1,8 м.

Идея 4. Перегородки из стекла
Чтобы зонировать «однушку», стоит использовать стеклянные перегородки, которые пропускают световой поток и смотрятся практически незаметно. Они не утяжеляют и не загромождают пространство. Это очень важно. Такая ошибка в маленькой квартире недопустима.

Идея 5. Кровать в стене

Идея 6. Раздвижная перегородка

Идея 7. Открытая детская для ребенка в студии вместе с родителями




Идея 8. Задействовать площадь прихожей

Идея 9. Использовать встроенные системы для хранения в 1-комнатной квартире
Встроенные системы для хранения вещей решают вопрос размещения вещей и при этом не загромождают пространство.



Идея 10. Сделать двушку из однокомнатной квартиры
Чтобы результат превзошел ожидания, следует придерживаться некоторых приемов:
пространство разделите стеклянными блоками – так получите две функциональные и естественно освещенные зоны. Прочный материал идеален для установки перегородок в квартире; перегородка из гипсокартона сделает одну зону глухой, комната лишится естественного освещения. Такая перегородка сгодится для спальни, где искусственный свет будет смотреться даже лучше. Для этого стоит использовать бра, светильники и торшеры;
зонирование мебелью – это декоративный вариант перепланировки с отсутствием тепло- и звукоизоляции.
Если высота потолков в квартире больше 2,5 метров, можно соорудить «второй этаж», например, для детской. Оптимальным вариантом для лестницы будут ступени из тумбочек, где можно разместить игрушки, книги, детские вещи.
В однокомнатной квартире хорошо выглядит зонирование разноцветными обоями и текстилем.

Идея 11. Сделать из однушки трешку
При наличии фантазии однокомнатную квартиру реально переоборудовать в трехкомнатное пространство. Однако такой ход выполним для помещений, площадью от 40 кв.м. Для функциональности перепланировки обычно необходимо сносить стену кухни. Так помещение будет квадратным, что расширит возможности для работы дизайнера. Идеальным будет решение об угловом расположении комнат.
В однокомнатной «трешке» будут спальня, детская и гостиная. В центральной зоне разместится гостиная, соединяющая все комнаты в единое пространство. Чтобы оно получилось воздушным и легким, двери из проекта стоит исключить. Стеновые перегородки поднимать рекомендуется не выше, чем на 1,4 метра. На кухне – можно использовать стол-трансформер, а в ванной – компактную душевую кабинку.

Идея 12. Делаем студию
Квартиры-студии сегодня становятся весьма актуальными. Это современный вид жилья, где перегородками выступают ширмы, полочки и стойки. Если придумать невысокую гипсокартонную стену, она сделает помещение уютнее.
Зону для приготовления пищи и гостиную можно разделить аркой. В такой перепланировке обязательно используют разное напольное покрытие: в гостиной – ламинат, в кухне – плитку. Гостевую зону лучше расположить около окна. Сюда стоит разместить диван, шкаф, кресла, столик и телевизор. На кухне следует установить барную стойку.

Идея 12. Cпальня за шторой подходит для пары без детейэкономная реализация.



Идея 13. Cпать на диване, кухня отдельно
Сегодня такой планировки стараются избегать, спать нужно на кровати!

Идея 14. Если высокие потолки — задействуй пространство!

Идея 14. Кровать на подиуме — хранение внизу
Идея 15. Столешница и стол вместе
Идея 16. Кровать в нише
Идея 17. Зонирование стеллажом
Идея 18. Зеркальный шкаф во всю стену добавляет объема
Идея 19. Хранение вдоль всей стены до потолка
Идея 20. Стенка для хранения + рабочее место
Еще несколько идей перепланировок — реализация с фото

















































Примеры однокомнатных квартир с перепланировкой — планА как вы решили проблему нехватки свободной площади в однокомнатном жилье?


























Только зарегистрированные и авторизованные пользователи могут оставлять комментарии.
+1
Очень много интересных идей, современно, оригинально, красиво! Хотя нет у моих друзей однокомнатных квартир, но поделюсь обязательно этой подборкой. Спасибо!
- ↓
+1
Отличная подборка! Спасибо
- ↓

