15 квадратных метров уюта
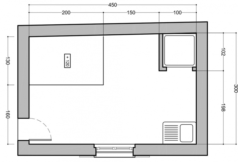
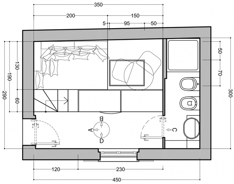
Что такое 15 кв.м — комната в обычной квартире, где многие с трудом размещают всю необходимую мебель для гостиной. Дизайнер Silvana Citterio имеет свою небольшую, как келья, квартиру в 15 кв. м. в Милане, которую она сделала не только уютным, но и достаточно просторным местом для жизни.

Конечно, дизайнер Сильвана Читтерио не живет в этой квартире, а использует ее как место для ночевки и остановок в Милане. Все остальное время, она с мужем проводит в их загородном доме, возле Милана.













Конечно, дизайнер Сильвана Читтерио не живет в этой квартире, а использует ее как место для ночевки и остановок в Милане. Все остальное время, она с мужем проводит в их загородном доме, возле Милана.














Только зарегистрированные и авторизованные пользователи могут оставлять комментарии.
0
Нет слов! Настолько все органично, уютно и ничего лишнего! Я бы тоже не отказалась от такой квартиры в Милане…
- ↓
0
Господи, подарите мне этого дизайнера — шибко надо!!!
- ↓

